Flytt rett inn i et nytt hus på Oppaker i Akershus
Bo i trygge, rolige og naturskjønne omgivelser, men likevel med kort vei til større byer. Det tar kun ca 50 minutter med tog til Oslo og bare en halvtimes kjøretur til Gardermoen. Du kan lese mer om området lenger ned på siden.
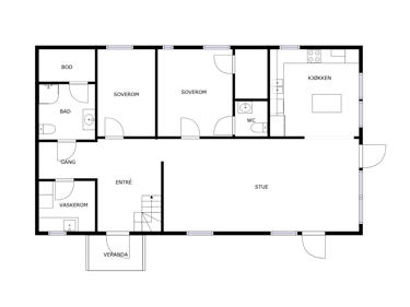
Et av husene til salgs er husmodellen Fanny, et smart hus med en god planløsning og to soverom i første etaje, hvorav det store har et eget walk in-closet og eget toalett. Den L-formede kjøkken/stue løsningen er plassert lengst inn i huset med vinduer langs hele gavelen og to helglassede terrassedører. Her kan du tilbringe mange kvelder med utsikt over hagen.
Huset selges via megler på Finn.no. Se annonsen her og ta direkte kontakt med megleren.
Mer om objektet
- Naturskjønn beliggenhet i trygge og rolige omgivelser
- Et godt lokalsamfunn med nærhet til fasiliteter & aktiviteter
- Gode pendlermuligheter til Oslo og Gardermoen
Her kan du flytte rett inn i et stort, nytt hus med hage - i trygge, rolige og naturskjønne omgivelser, men likevel bo i nærheten av det du trenger og med kort vei til større byer.
Fra Årnes togstasjon er det jevnlige avganger på Kongsvingerbanen morgen og kveld, og det tar kun ca 50 minutter med toget til Oslo S, noe som gir fleksibilitet for pendlere. Det går også busser fra Oppaker til Årnes og videre mot Jessheim og Oslo. Det finnes gode parkeringsmuligheter både på Bjertnestunet og ved Årnes stasjon for pendlere.
Med bil tar det normalt ca 45-50 minutter via E16 og E6, og det er kun ca 30 minutter til Gardermoen og 35 minutter til Lillestrøm.
Bjertnestunet og nærområdene Oppaker og Årnes i Nes kommune tilbyr et bredt spekter av fritidsaktiviteter for barn og voksne. Det ligger en flott badestrand langs Glomma. Idrettslaget FUVO har et moderne anlegg med helårs kunstgressbane for fotball, og det finnes også boksegruppe og bridgegruppe der. To av Norges fineste golfbaner, Nes Golfklubb og Hvam Golfklubb, ligger i nærheten - perfekt for golfspillere på alle nivåer. Nes Ridesenter tilbyr fasiliteter for rideinteresserte, med muligheter for både nybegynnere og erfarne ryttere.
Området byr på turstier og lysløyper, ideelt for turgåing, løping og skiaktiviteter om vinteren. Sjekk gjerne ut.no, dnt.no og skiforeningen. Nes svømmehall er en moderne familiesvømmehall med stupetårn, vannsklie, klatrevegg og terapibasseng, som tilbyr morsomme aktiviteter for både store og små. Det finnes også flere treningssentre i området, som for eksempel Spenst Årnes og Atletico i Neshallen. Liker du yoga finnes det også flere som tilbyr dette. Ellers finnes det flere andre lag og foreninger i nærheten som tilbyr håndball, ski, sykkel kunst, dans og korps.
Kommunen tilbyr også kulturskole med undervisning i musikk, dans, teater og visuell kunst for barn og unge. Kommune har fritidsklubb med kreative verksteder, disotek, bingo og biljard, samt at det er et eget bibliotek i Nes. I området arrangeres det flere aktiviteter og arrangementer i Nes, Oppaker og Årnes. Som for eksempel friluftslivets år, konserter og teaterforestillinger, verdens aktivitetsdag, matfestival, Årnesdager, vikingmarked ved elva og oktoberfest.
Det finnes barnehager i Nes med kort vei fra Oppaker, som for eksempel Oppaker barnehage 5 min unna og Oppaker barneskole finnes rett i nærheten. For ungdomsskole elever er det også muligheter i kommunen, da Nes har flere ungdomsskoler som de kan gå på, avhengig av hvor i kommunen de bor. Og for videregående skole elever finnes det flere muligheter, avhengig av hva man vil søke seg inn på. Nes videregående skole i Årnes tilbyr blant annet studiespesialisering, idrettsfag og helse- og oppvekstfag, mens Hvam videregående tilbyr naturbruk, bygg- og anleggsteknikk. I Kongsvinger finnes det også flere andre utdanningsprogrammer.
Det er kort vei til lokale matbutikker og AMFI kjøpesenter i Årnes. For større større shoppingmuligheter kan du besøke Jessheim Storsenter, kun en halvtime unna.
Flytt inn i et nytt hus i rolige og naturskjønne omgivelser på Oppaker i Akershus - Älvsbyhus


















